Комплексная система Model Studio CS

Обеспечит автоматизацию проектной деятельности при оптимальной совокупной стоимости решения.

Трехмерное и информационное проектирование является наиболее эффективным направлением автоматизации проектных работ. Программных средств, позволяющих автоматизировать рабочее место проектировщика, много, но большинство из них способно решить лишь частные задачи инженера, никак не помогая ни в организации процессов коллективной работы и комплексного проектирования, ни в управлении ими.

Подробнее о продукте

icon

Модуль nanoCAD «Механика»

По запросу

Также получить консультацию по программному продукту можете через мессенджеры

Инженерное решение для проектирования изделий различной сложности и оформления конструкторской документации в соответствии с ЕСКД.

Все описание

Задачи

Оформление чертежей согласно ЕСКД и ЕСТД;
Ускорение и упрощение проектирования машиностроительных объектов;
Расчет зубчатых передач, сосудов и аппаратов;
Создание библиотек пользовательских элементов.
Все задачи

О продукте

nanoCAD Механика – это универсальная двумерная графическая система, предназначенная для оформления чертежей по стандартам ЕСКД, для проектирования болтовых и заклепочных соединений, валов, механических передач, трубопроводов, сосудов и аппаратов, а также для выполнения инженерного анализа. Использование интеллектуальных параметрических объектов, инструментов автоматизированного проектирования и оформления существенно ускоряет процесс создания чертежа. Продукт базируется на платформе nanoCAD и содержит все основные инструменты для создания плоских чертежей. Формат выходной документации – *.dwg.

Модуль nanoCAD Механика поставляется исключительно в комплектации Платформа nanoCAD в конфигурациях nanoCAD Standart Mech и nanoCAD Pro.


Область применения

Программный продукт nanoCAD Механика предоставляет широкие возможности для автоматизации проектно-конструкторских работ в машиностроительной и других отраслях промышленности. Он обладает обширным функционалом для проектирования, выполнения инженерных и некоторых технологических расчетов, а также оформления плоских чертежей в строгом соответствии с ЕСКД.

nanoCAD Механика может применяться и как дополнение к любой системе трехмерного проектирования для оформления проекций 3D-видов по ЕСКД, и в качестве самостоятельной системы для проектирования и выпуска документации.

Добавленные модули трехмерного проектирования и двумерных параметрических зависимостей позволяют создавать трехмерные детали и сборочные единицы с помощью привычных инструментов проектирования.

Полное соответствие программы стандартам ЕСКД позволяет решать подавляющее большинство задач при выпуске проектно-конструкторской документации. Благодаря гибкой системе настроек пользователь может тремя нажатиями клавиши мыши переключаться между стандартами ЕСКД и общепринятыми мировыми стандартами, такими как ISO, GB и др. В nanoCAD Механика предусмотрена возможность создания единого файла настроек для предприятия с целью создания единообразных чертежей.

Поддержка форматов *.dwg и *.dxf позволяет обмениваться данными со смежниками и заказчиками, использующими любые чертежно-графические системы.


Задачи

Оформление чертежей согласно ЕСКД и ЕСТД Оформление чертежей согласно ЕСКД и ЕСТД.
Ускорение и упрощение проектирования машиностроительных объектов Ускорение и упрощение проектирования машиностроительных объектов.
Расчет зубчатых передач, сосудов и аппаратов Расчет зубчатых передач, сосудов и аппаратов.
Создание библиотек пользовательских элементов Создание библиотек пользовательских элементов.

Возможности

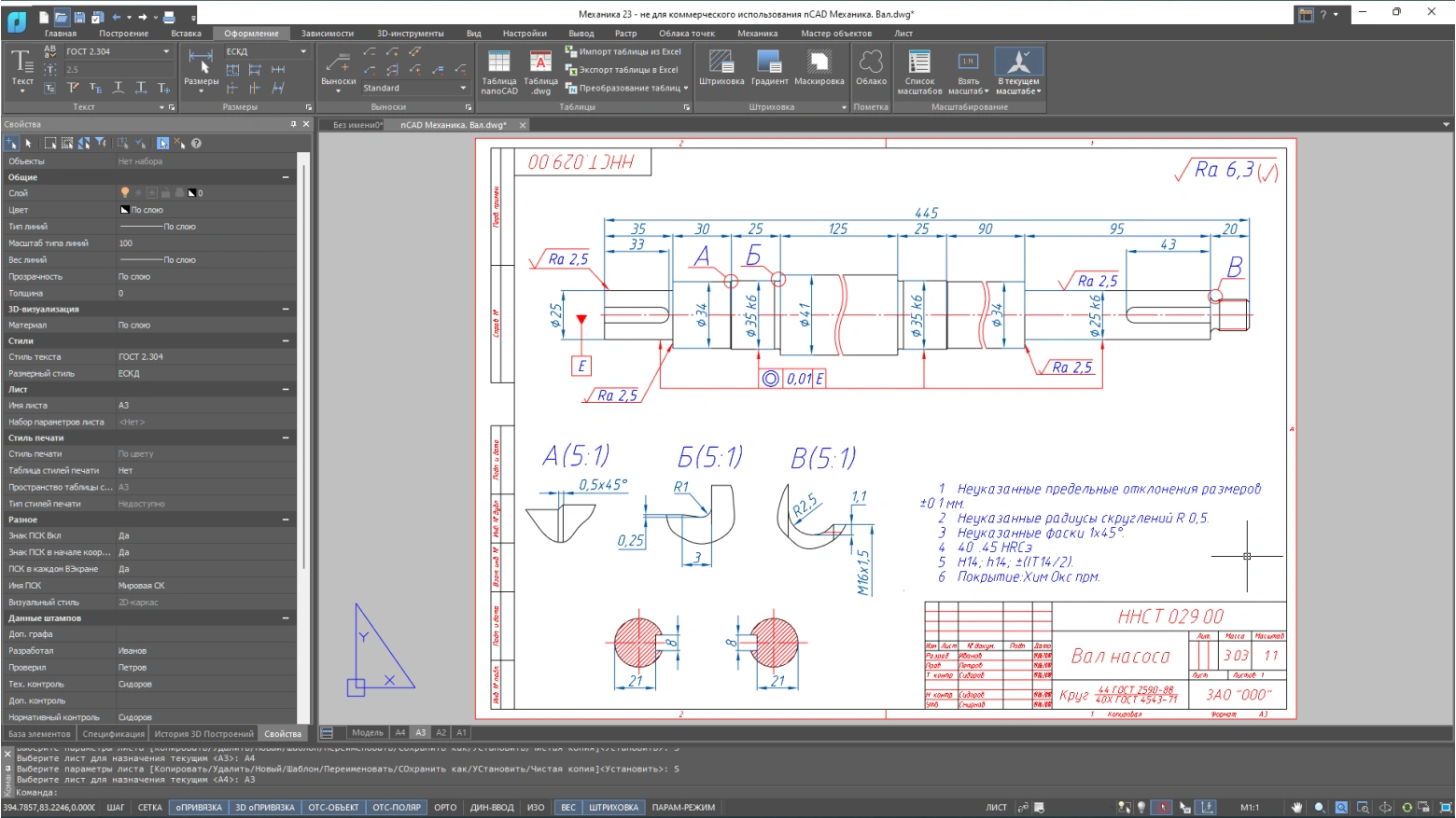
Оформление чертежей

Инструменты оформления предоставляют широкий выбор функций для создания, редактирования и форматирования различных элементов, таких как размеры, рамки, допуски формы, знаки шероховатости и маркировка. Эти инструменты позволяют точно и наглядно отобразить требования к изделию, делают более удобной работу с чертежами. Автоматизация оформления значительно упрощает и ускоряет процесс проектирования.

Составление спецификаций

Спецификации в модуле «Механика» являются важным инструментом организации и структурирования информации о сборочных единицах и компонентах проекта. Они позволяют создавать списки деталей, материалов, стандартных изделий и других элементов, а затем управлять такими списками. Спецификации автоматизируют работу, обеспечивая автоматическую сортировку, подсчет количества элементов, связь обозначений с …

Болтовое соединение

Пользователи могут создавать болтовые соединения, определять параметры болтов, включая длину, диаметр, тип резьбы, а также выбирать соответствующие гайки и шайбы, создавая свои шаблоны. Проектирование крепежных соединений может выполняться с автоматическим подбором параметров.

Заклепочное соединение

С помощью этого инструмента пользователи могут создавать заклепочные соединения, определять такие параметры заклепок, как диаметр, длина, тип головки.

Проверочный расчет болтов

Предназначен для определения допустимости использования выбранной резьбы при заданных условиях нагружения. Расчет основан на рекомендациях ГОСТ 1759.4-87.

Проектирование деталей вращения

Инструменты для проектирования разнообразных деталей вращения (валы, шестерни, подшипники и другие элементы). Имеются средства проверки сборки, позволяющие обнаружить и устранить возможные конфликты или столкновения между деталями.

Проектирование трубопроводов

Пользователю предоставлена возможность легко и точно создавать двумерные чертежи трубопроводов. Процесс проектирования значительно упрощает обширная библиотека компонентов, таких как трубы, фитинги, клапаны и насосы. Можно выбрать необходимые компоненты из библиотеки и быстро собрать трубопровод в нужной конфигурации.

Импорт печатных плат IDF

При импорте платы из файла IDF система считывает информацию, предоставляя пользователю возможность проверить и настроить различные аспекты платы, такие как параметры, цвета и детализация.

Статический расчет балок и валов

Функционал для статического расчета прямых балок и валов постоянного сечения. Можно определить сечение (стандартное, металлопрокат из базы элементов, произвольное), задать размеры, материал, опоры, нагрузки на балку и выполнить расчет с последующим построением эпюр.

Расчет пружин

Инструмент, позволяющий рассчитывать пружины сжатия и растяжения. Пользователь может выбрать схему ввода (сила и ход, сила и прогиб или сила и длина) и задать параметры расчета. Модуль поддерживает российские стандарты, включая ГОСТ и ОСТ. После ввода параметров можно выбрать материал и выполнить расчет для создания модели, чертежа или отчета.

Листовое моделирование

Листовое моделирование позволяет создавать как отдельные детали с получением разверток, так и сборки из листовых деталей – например, при соединении листов металла в рамках корпуса или формировании сложной листовой конструкции. Это помогает визуализировать и анализировать взаимодействие различных деталей и компонентов в листовых конструкциях.

История 3D-построений

Отслеживает изменения в 3D-модели и управляет ими. Сохраняет операции, позволяет вернуться к предыдущему состоянию модели и изменить выполненные действия. Делает более удобным процесс редактирования и добавления элементов, упрощает внесение изменений в детали и сборки, сохраняет варианты моделей. Повышает гибкость и эффективность работы с 3D-моделями.
Заглушка

Типовой набор инструментов проектирования

Отслеживает изменения в 3D-модели и управляет ими. Сохраняет операции, позволяет вернуться к предыдущему состоянию модели и изменить выполненные действия. Делает более удобным процесс редактирования и добавления элементов, упрощает внесение изменений в детали и сборки, сохраняет варианты моделей. Повышает гибкость и эффективность работы с 3D-моделями. продуманный и удобный интерфейс, обеспечив…

Оформление проекций чертежей по ЕСКД

Установленные шрифты и типы линий по ГОСТ; Предустановленный размерный стиль ЕСКД; Поля допусков и предельные отклонения размеров, а также посадки по ЕСДП; Форматы и штампы; Редактор технических требований и технических характеристик; Допуски формы и расположения поверхностей; Знаки шероховатости поверхностей; Виды, разрезы, сечения, обрывы и разрывы; Автоматическая сортировка б…
Заглушка

Оформление спецификаций

  • Номера позиций спецификации;
  • Автоматическое получение спецификации;
  • Создание пользовательских спецификаций.
Заглушка

Проектирование болтовых и заклепочных соединений

  • Соединение пакетов деталей произвольной толщины болтами, винтами и шпильками;
  • Упрошенные виды крепежных деталей в соединении;
  • Соединение пакетов деталей произвольной толщины заклепками обычной и повышенной точности, пустотелыми и полупустотелыми заклепками;
  • Шаблоны болтовых и заклепочных соединений.
Заглушка

Проектирование элементов передач

  • Мощный инструмент проектирования валов, осей и вал-шестерней с возможностями интеллектуального создания концов валов, шпоночных пазов, шлицев, внутренних участков валов;
  • Автоматизированное создание видов, разрезов, сечений валов;
  • Цепные и ременные передачи и их элементы.

Проектирование зубчатых зацеплений

В полном объеме учтены требования ГОСТ 21354-87; В полном объеме учтены требования ГОСТ 16532-70; При выборе материалов добавлена возможность учитывать твердость, запас прочности, пределы выносливости, способ получения заготовки, упрочняющую обработку и т.д.; Учтен широкий спектр нагрузок (постоянная, переменная, основная, реверсивная), позволяющий проводить расчеты даже при срабатывании …
Заглушка

Проектирование трубопроводов

Автоматическое соединение элементов арматуры трубопроводом; Интеллектуальное распознавание типоразмера, точки вставки деталей трубопровода; Ассоциативная связь деталей арматуры трубопровода в соответствии с их значениями в базе данных; Поддержка трубопроводов по наружному и по внутреннему конусу; Автоматическая врезка элементов арматуры в трубопроводы; Фланцевые соединения. …
Заглушка

Библиотека стандартных и унифицированных элементов

Детали крепления; Стандартные профили; Развертки; Условные графические обозначения элементов схем; Технологические эскизы; Элементы станочных приспособлений; Детали и узлы механических передач, подшипники, валы и муфты; Электродвигатели; Редукторы; Арматура трубопроводов по внутреннему и наружному конусу; Детали сосудов и аппаратов; Фильтр номенклатуры. …

Расчеты

Менеджер расчетов; Расчеты цилиндрических и конических зубчатых зацеплений, валов, подшипниковых опор, крепежных соединений; Расчет и генерация пружин сжатия и растяжения; Получение документации по расчету со всеми формулами и ссылками на ГОСТ; Расчет геометрических характеристик сечения относительно произвольных осей; Проверочный расчет болтов по методике, изложенной в учебнике Н.Г. …
Заглушка

Оформление операционных эскизов

  • Простановка технологических размеров;
  • Обозначение опор, зажимов и установочных устройств;
  • Отрисовка условных обозначений инструментальных наладок;
  • Обозначение обрабатываемых поверхностей и контролируемых размеров.
Заглушка

Встроенный параметризатор MechWizard

  • Наложение сборочных и параметрических зависимостей на объекты;
  • «Обучение поведению» стандартной детали;
  • Изменение существующих элементов базы;
  • Создание пользовательских элементов базы.
Заглушка

Дополнительные средства

  • Распознавание форматов и таблиц;
  • Линии вспомогательных построений;
  • Организация структуры сборки. Группы;
  • Интеграция с NormaCS и TechnologiCS.

Модуль двумерных параметрических зависимостей

  • Параметрические зависимости;
  • Геометрические зависимости;
  • Автоналожение зависимостей;
  • Возможность создания систем уравнений для динамического изменения пользовательской геометрии.

Модуль трехмерного проектирования

Стандартные инструменты трехмерного проектирования: выдавливание, вращение, вытягивание по траектории и по сечениям, фаска и скругление; Инструменты для ориентации трехмерной геометрии в пространстве: 3D Перемещение, 3D Поворот, 3D Выравнивание; Рабочая геометрия: плоскости, оси и точки; Инструменты для создания плоских видов из имеющейся трехмерной геометрии; Использование базы стандар…

Местные разрезы

Команда Местный разрез позволяет автоматически получать изображения элементов базы типа шпоночных пазов и центровых отверстий на валах. На деталях передач и фланцах средствами этой команды можно делать полуразрезы, а на днищах и обечайках с местными разрезами – показывать их толщину.

Развертка как отдельное тело

При работе с листовыми моделями реализована возможность создания развертки как отдельного тела. Этот функционал предоставляет больше свободы при оформлении чертежей по 3D-моделям из листовых тел. Чертежи разверток теперь можно оформлять одновременно в двух состояниях, разогнутом и согнутом, сохраняя при этом ассоциативность с 3D-моделью.

Конфигурации

Преимущества

Автоматическое создание спецификаций
Автоматическое создание спецификаций

Обширный функционал для автоматического создания спецификаций по ГОСТу: простой, встраиваемой, электромонтажной, плазовой, групповых типов А и Б. Широкий спектр настроек позволяет учитывать особенности подготовки спецификаций на различных предприятиях, а также создавать пользовательские спецификации.

Библиотеки параметрических объектов
Библиотеки параметрических объектов

В базу элементов СПДС включен обширный набор наиболее часто используемых металлических профилей, сборных железобетонных изделий, деталей креплений. Каждый объект имеет параметры, соответствующие стандарту, ГОСТу, серии.

Библиотеки параметрических объектов
Библиотеки параметрических объектов

Большой выбор параметрических стандартных элементов (ГОСТ, ОСТ, DIN и ISO). В сочетании с возможностью создания пользовательских типовых элементов это позволяет значительно сократить сроки разработки проекта, максимально уменьшить объем рутинной работы и полностью сконцентрироваться на инженерном творчестве.

Гибкость настроек
Гибкость настроек

Удобная работа благодаря широким возможностям настроек. Инструменты оформления конструкторской и технологической документации можно адаптировать в соответствии с требованиями внутреннего нормоконтроля предприятия, учитывая правила ЕСКД и ЕСТД.

Новые возможности

Доработанная команда Штамповка

При создании штамповки теперь можно выбирать сразу несколько замкнутых контуров (областей эскиза).

Обновление истории 3D-построений

Реализована возможность изменять порядок построения в дереве истории 3D-построений, появился элемент окончания истории 3D-построения. Теперь элементы истории можно менять местами и скрывать детали.

Новая команда «Отбортовка»

Появилась команда листового моделирования, которая позволяет построить в листовой детали сгиб вдоль плоского ребра произвольной формы или цепочки ребер, стыкующийся по касательной.

Новые прокаты в базе материалов

В базу материалов добавлены прокаты со сложным условным обозначением: ГОСТ 5582-75, ГОСТ 5632-2014, ГОСТ 24892-81, ГОСТ 27772-2021, ГОСТ 51393-99, ГОСТ Р 54909-2012, ГОСТ Р 55374-2012.

Спецификация по 3D-модели

Возможность создавать спецификации по 3D-сборкам с автоматическим подсчетом массы в зависимости от назначенных на детали материалов.

Сборочные единицы

Дополнительные возможности для 3D-проектирования сборочных единиц, с учётом потребностей по автоматизации создания чертежей и спецификаций.

Новые материалы в базе

  • Cтали ГОСТ 1050-88, ГОСТ 1050-2013, ГОСТ 4543-2016 с полным обозначением по стандартам;
  • Иностранные материалы по EN, DIN и ASTM;
  • Прокаты ГОСТ 801-78, ГОСТ 1051-73, ГОСТ 20072-74, ГОСТ 23570-79, ГОСТ Р 54908-2012, ГОСТ Р 56299-2014.

О разработчике

Нанософт Российский разработчик инженерного программного обеспечения: технологий автоматизированного проектирования (САПР/CAD), информационного моделирования (ТИМ/BIM) и сопровождения объектов промышленного и гражданского строительства (ПГС) на всех этапах жизненного цикла, а также сквозной цифровизации всех процессов в производстве. Основанная в 1989 году, компания занимается разработкой и внедрением программного обеспечения, включая такие инструменты, как nanoCAD, иные инструменты САПР и инновационные решения для проектирования, редактирования и моделирования. nanoCAD – это мощная платформа, обладающая обширными функциональными возможностями, предназначенная для создания чертежей, 2D и 3D моделирования. Приложение пользуется большой популярностью среди инженеров, архитекторов и проектировщиков. Компания постоянно развивается, стремясь предложить инновационные решения и инструменты, которые удовлетворяют потребности специалистов в области инженерии и дизайна. Нанософт активно работает над созданием новых технологий, чтобы обеспечить эффективные инструменты для профессионалов, работающих в разнообразных сферах проектирования и моделирования.

Мероприятия

Сертификаты и свидетельства

Документы, подтверждающие право на реализацию программного обеспечения, а также на проведение обучающих программ по представленному ПО.

Смотреть сертификаты

Подпишитесь на рассылку и получайте первым информацию о предстоящих мероприятиях

Оставить заявку

Наш менеджер свяжется с вами для обсуждения запроса.